W Dąbrówce powstanie trzyoddziałowe przedszkole
W Dąbrówce powstanie trzyoddziałowe przedszkole
2018-03-06
W Dąbrówce powstanie trzyoddziałowe przedszkole
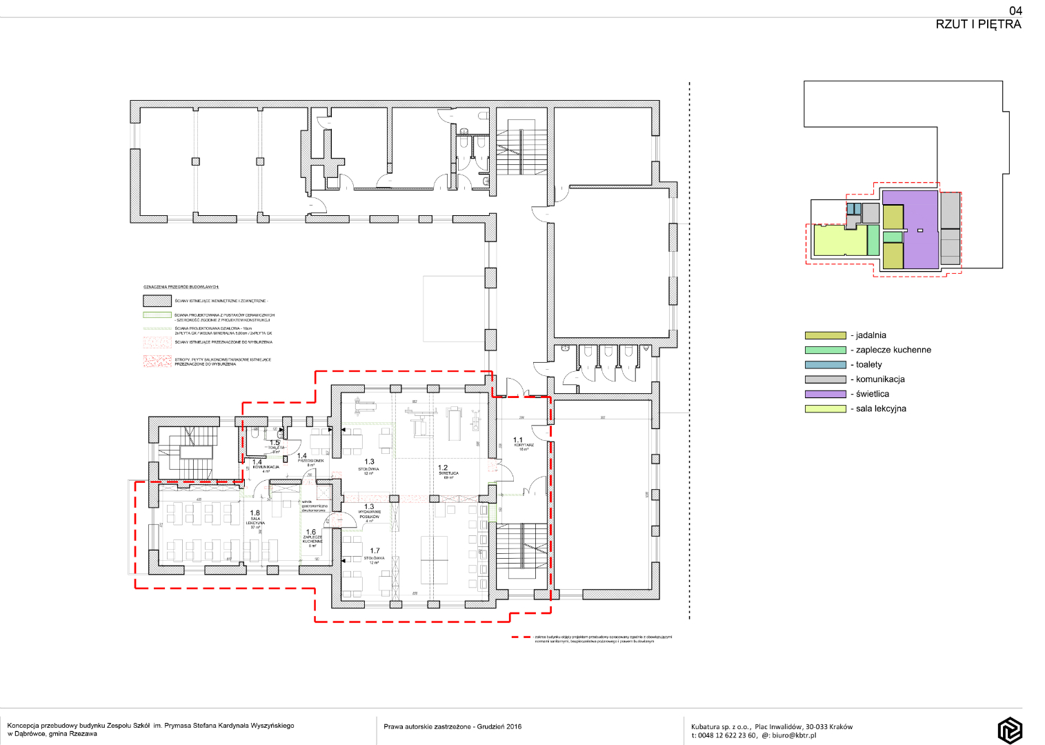
Budynek Zespołu Szkół im. Prymasa Stefana Kardynała Wyszyńskiego w Dąbrówce ma zostać przebudowany, tak aby mogło w nim powstać trzyoddziałowe przedszkole.
Dzisiaj w siedzibie Urzędu Gminy Rzezawa wójt Mariusz Palej zawarł umowę z przedstawicielem firmy Archinowa sp. z o.o. z siedzibą w Krakowie na opracowanie dokumentacji projektowej tej inwestycji. W jej ramach ma zostać wykonany wielobranżowy projekt budowlany oraz wykonawczy, a także m.in. wizualizacja planowanej inwestycji oraz specyfikacja techniczna wykonania i odbioru robót budowlanych (STWiORB).
Dokumentacja projektowa w całości ma zostać zrealizowana do 16 lipca bieżącego roku. Będzie ona kosztować 43 tys. zł brutto.
Budynek Zespołu Szkół im. Prymasa Stefana Kardynała Wyszyńskiego w Dąbrówce ma zostać przebudowany, tak aby mogło w nim powstać trzyoddziałowe przedszkole.
Dzisiaj w siedzibie Urzędu Gminy Rzezawa wójt Mariusz Palej zawarł umowę z przedstawicielem firmy Archinowa sp. z o.o. z siedzibą w Krakowie na opracowanie dokumentacji projektowej tej inwestycji. W jej ramach ma zostać wykonany wielobranżowy projekt budowlany oraz wykonawczy, a także m.in. wizualizacja planowanej inwestycji oraz specyfikacja techniczna wykonania i odbioru robót budowlanych (STWiORB).
Dokumentacja projektowa w całości ma zostać zrealizowana do 16 lipca bieżącego roku. Będzie ona kosztować 43 tys. zł brutto.
Czytano: 1380 razy




























