Rusza budowa kolejnej sali gimnastycznej oraz boiska wielofunkcyjnego w gminie Rzezawa
Rusza budowa kolejnej sali gimnastycznej oraz boiska wielofunkcyjnego w gminie Rzezawa
2016-11-18
Rusza budowa kolejnej sali gimnastycznej oraz boiska wielofunkcyjnego w gminie Rzezawa.
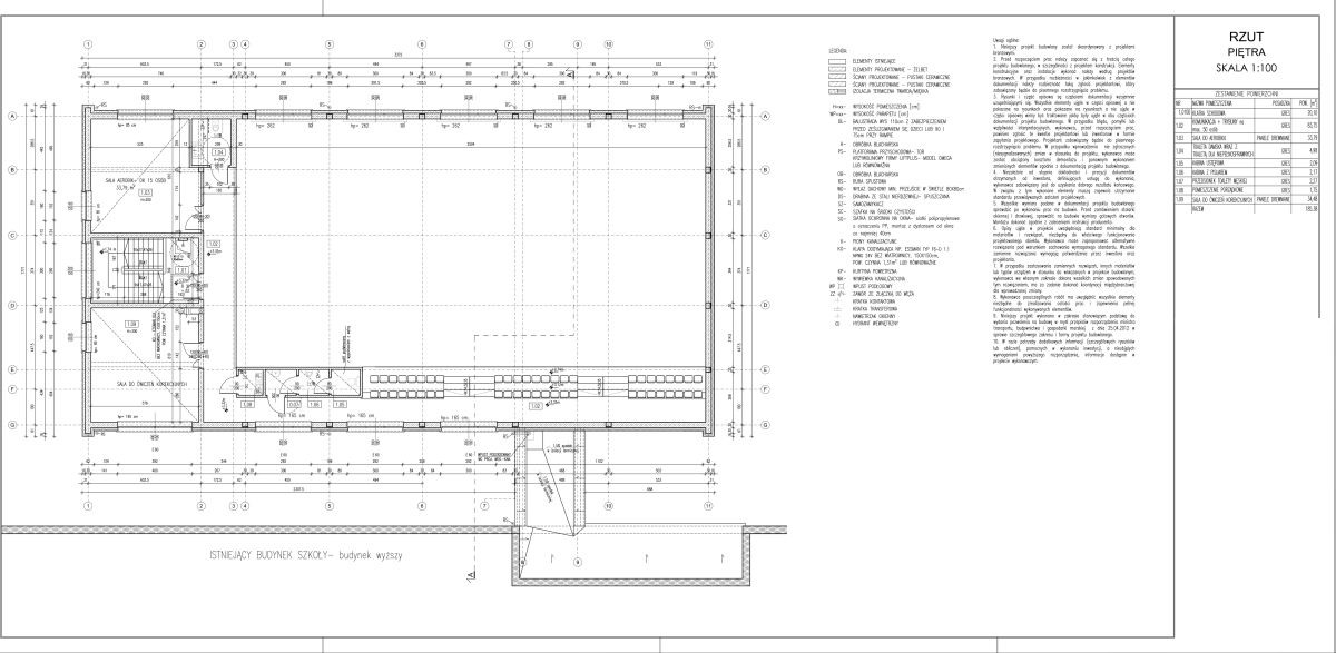
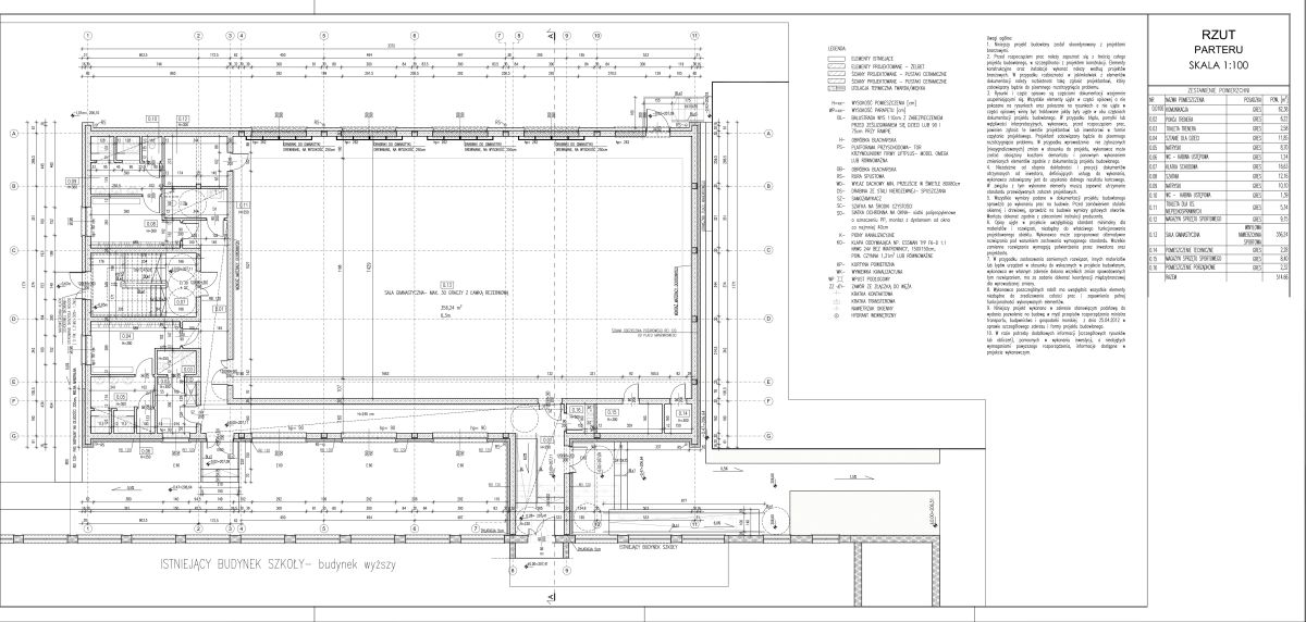
W dniu 17.XI.2016 r. w Rzezawie została zawarta umowa pomiędzy Gminą Rzezawa reprezentowaną przez pana Mariusza Paleja – Wójta Gminy a firmą budowlaną „ANKO” z Tarnowa jak również został przekazany plac budowy. Przedmiotem umowy jest wykonanie robót budowlanych polegających na budowie sali widowiskowo-sportową z zapleczem i wyposażeniem sportowym oraz remontem boiska zewnętrznego asfaltowego przy Publicznej Szkole Podstawowej w Jodłówce wraz z uzyskaniem pozwolenia na użytkowanie. Termin wykonania wszystkich prac przewidziany jest do 30.IX.2019 roku. Wartość podpisanej umowy wynosi 3.069.939,19 zł.
Zaprojektowany budynek sali gimnastycznej posiada arenę sportową o wymiarach 12 x 24 m, pomieszczenia zaplecza oraz galerię widokową na salę gimnastyczną. Pomieszczenia socjalne i szatniowe zostały dostosowane do osób niepełnosprawnych. Powierzchnia użytkowa budynku sali gimnastycznej wynosi 596,18 m2. Remont boiska zewnętrznego asfaltowego polega na wykonaniu nowej sportowej nawierzchni poliuretanowej, odwodnienia, oświetlenia, montażu trybuny i piłkochwytów. Wymiary boiska zewnętrznego to 22 x 40,5 m. Realizacja przedmiotowego projektu wpłynie na poprawę jakości kształcenia w Szkole Podstawowej w Jodłówce. Poprawa ta będzie najbardziej widoczna w obszarze wychowania fizycznego. Budowa sali gimnastycznej oraz boiska wielofunkcyjnego zewnętrznego zwiększy popularyzację sportu wszystkich mieszkańców gminy.
- Dzięki dobrze przygotowanemu wnioskowi, skonstruowanemu budżetowi zadanie zostało dofinansowane w wysokości 1.985.300,00 zł z Ministerstwa Sportu i Turystyki. Jest to już druga sala gimnastyczna, którą w tym roku rozpoczęliśmy budować. – wyjaśnia Mariusz Palej Wójt Gminy Rzezawa.
W dniu 17.XI.2016 r. w Rzezawie została zawarta umowa pomiędzy Gminą Rzezawa reprezentowaną przez pana Mariusza Paleja – Wójta Gminy a firmą budowlaną „ANKO” z Tarnowa jak również został przekazany plac budowy. Przedmiotem umowy jest wykonanie robót budowlanych polegających na budowie sali widowiskowo-sportową z zapleczem i wyposażeniem sportowym oraz remontem boiska zewnętrznego asfaltowego przy Publicznej Szkole Podstawowej w Jodłówce wraz z uzyskaniem pozwolenia na użytkowanie. Termin wykonania wszystkich prac przewidziany jest do 30.IX.2019 roku. Wartość podpisanej umowy wynosi 3.069.939,19 zł.
Zaprojektowany budynek sali gimnastycznej posiada arenę sportową o wymiarach 12 x 24 m, pomieszczenia zaplecza oraz galerię widokową na salę gimnastyczną. Pomieszczenia socjalne i szatniowe zostały dostosowane do osób niepełnosprawnych. Powierzchnia użytkowa budynku sali gimnastycznej wynosi 596,18 m2. Remont boiska zewnętrznego asfaltowego polega na wykonaniu nowej sportowej nawierzchni poliuretanowej, odwodnienia, oświetlenia, montażu trybuny i piłkochwytów. Wymiary boiska zewnętrznego to 22 x 40,5 m. Realizacja przedmiotowego projektu wpłynie na poprawę jakości kształcenia w Szkole Podstawowej w Jodłówce. Poprawa ta będzie najbardziej widoczna w obszarze wychowania fizycznego. Budowa sali gimnastycznej oraz boiska wielofunkcyjnego zewnętrznego zwiększy popularyzację sportu wszystkich mieszkańców gminy.
- Dzięki dobrze przygotowanemu wnioskowi, skonstruowanemu budżetowi zadanie zostało dofinansowane w wysokości 1.985.300,00 zł z Ministerstwa Sportu i Turystyki. Jest to już druga sala gimnastyczna, którą w tym roku rozpoczęliśmy budować. – wyjaśnia Mariusz Palej Wójt Gminy Rzezawa.

Czytano: 4328 razy




























