Rozpoczęcie budowy nowego przedszkola w Dąbrówce
Rozpoczęcie budowy nowego przedszkola w Dąbrówce
2019-09-11
Wójt Gminy Rzezawa Mariusz Palej podpisał umowę na kompleksową przebudowę budynku w Dąbrówce, w którym ma powstać przedszkole integracyjne. Inwestycja będzie kosztować niespełna 1 mln 740 tys. zł.
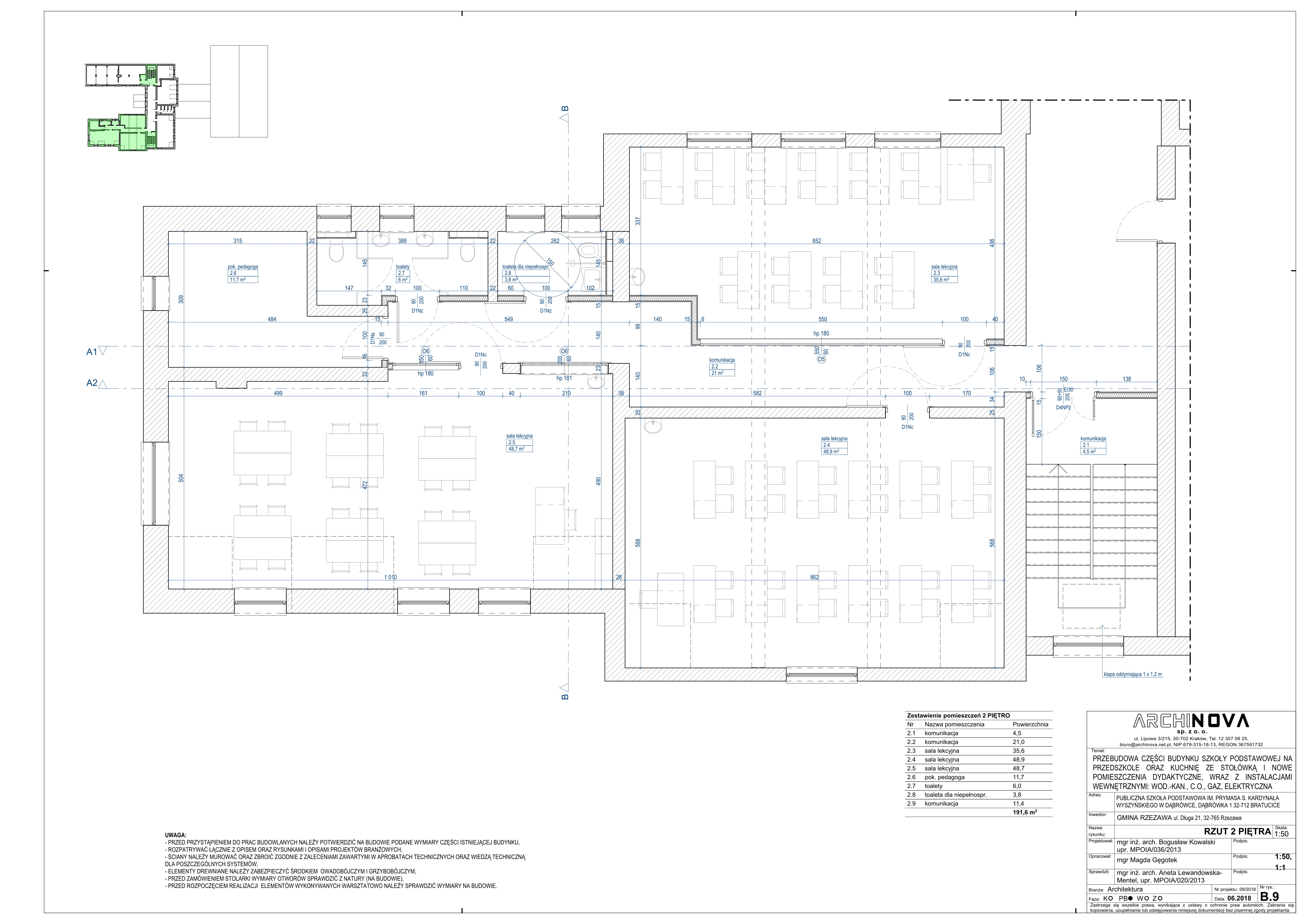
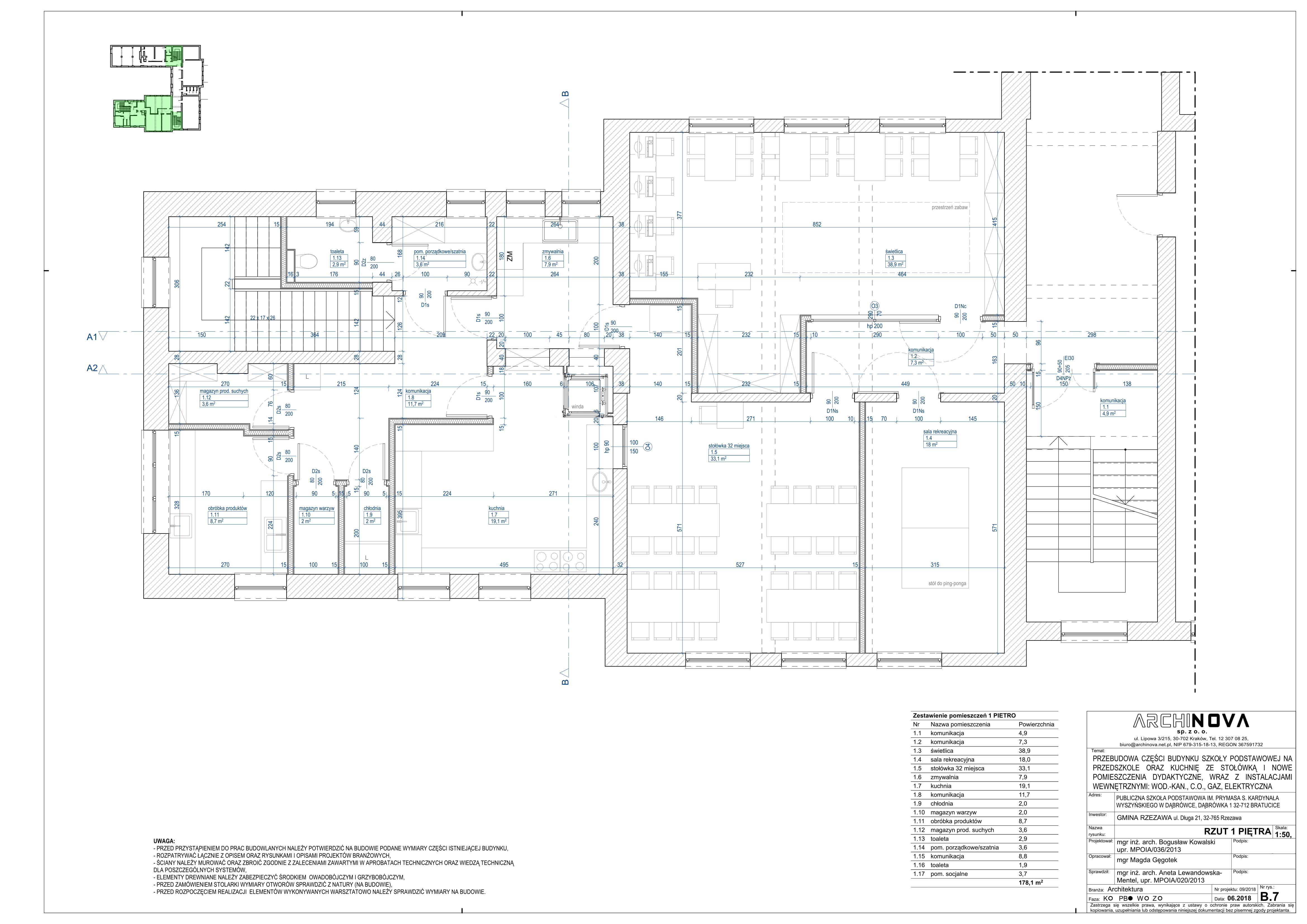
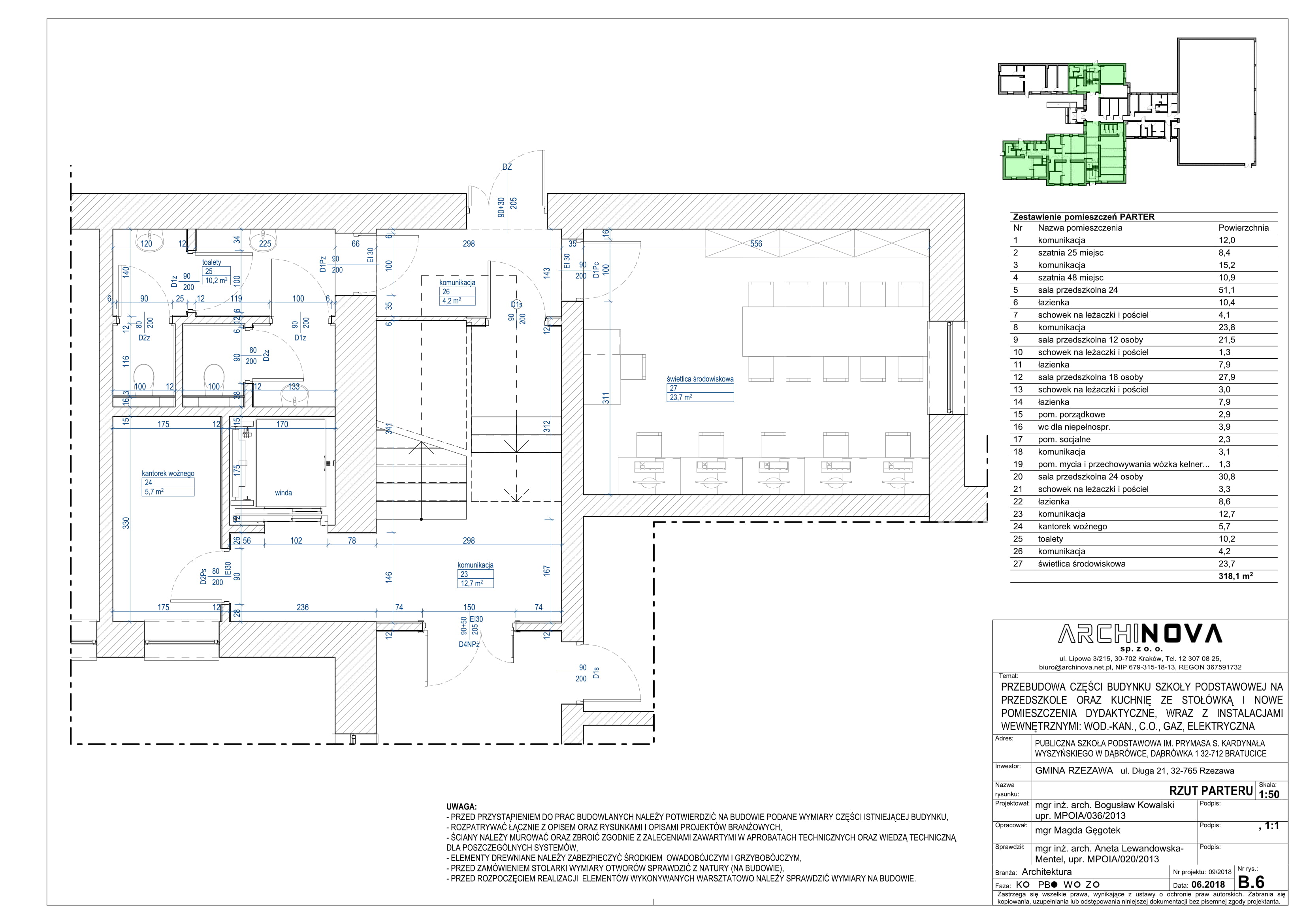
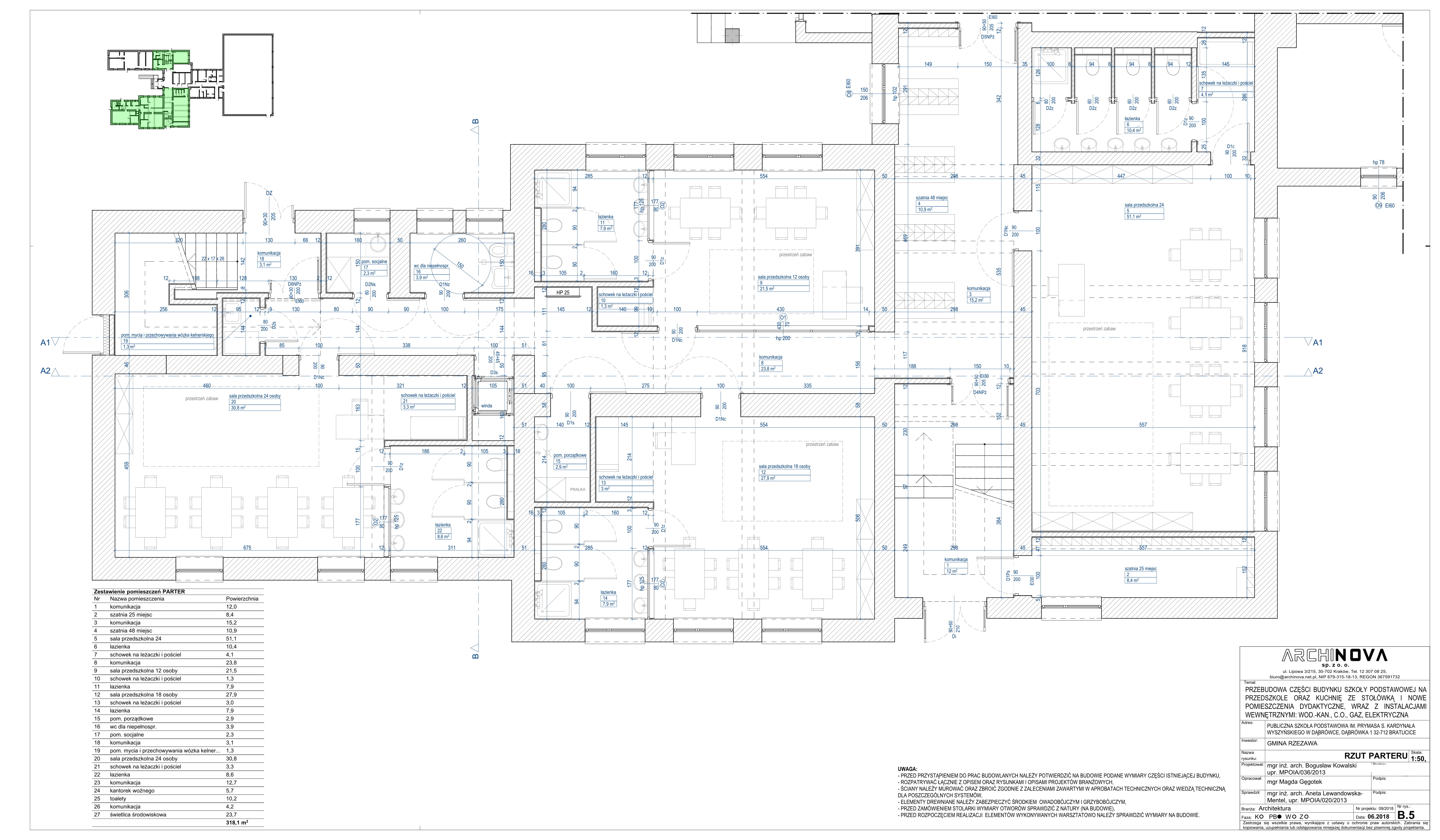
Obiekt, w którym będzie się mieścić nowe przedszkole to trzykondygnacyjny budynek wolnostojący znajdujący się na terenie Publicznej Szkoły Podstawowej im. Prymasa Stefana Kardynała Wyszyńskiego. Niedawno docieplone zostały w nim ściany i strop oraz wymieniona stolarka okienna i drzwiowa. Wymieniono także jego pokrycie dachowe. Wkrótce w ramach podpisanej umowy na jego parterze zostaną natomiast utworzone dwie sale przedszkolne, a także szatnie, łazienki oraz sala do rehabilitacji, która będzie wyposażona w nowoczesny sprzęt do ćwiczeń. Na pierwszym piętrze będzie się mieściła m.in. kuchnia obsługująca przedszkole oraz szkołę, stołówka, świetlica i sala rekreacyjna. Na drugim piętrze powstaną natomiast trzy nowoczesne sale dydaktyczne wraz z pokojem pedagoga i toaletami.
Cały budynek przedszkola w Dąbrówce będzie przystosowany do potrzeb osób niepełnosprawnych. Dzięki budowie windy będą one miały dostęp do wszystkich pomieszczeń znajdujących się w obiekcie. To jednak nie wszystko. Do budynku przedszkola zostanie zamontowana specjalna pochylnia, a w jego wnętrzu pojawią się pochwyty ścienne. Ponadto na każdej jego kondygnacji powstanie toaleta dla osób niepełnosprawnych. Na terenie przedszkola zostaną zamontowane również specjalne płyty ostrzegawcze z wypukłościami. Opracowane zostaną także różne schematy kolorystyczne wnętrz, co ma ułatwić poruszanie się po budynku osobom niewidomym i słabowidzącym. - Przebudowa budynku w Dąbrówce na integracyjne przedszkole jest z całą pewnością jedną z najważniejszych inwestycji realizowanych na trenie gminy Rzezawa w ostatnich latach. Utworzenie takiego miejsca jest bardzo potrzebne. Obecna siedziba przedszkola zaczyna być już zbyt ciasna. Posiada ona także bariery architektoniczne – zaznacza Wójt Gminy Rzezawa Mariusz Palej.
Umowa na przebudowę budynku na ternie szkoły podstawowej w Dąbrówce na integracyjne przedszkole została podpisana przez Wójta Mariusza Paleja z wykonawcą inwestycji 9 września br., po czym odbyło się przekazanie terenu pod budowę. Zadanie ma zostać zrealizowane do 14 sierpnia 2020 roku. Gmina Rzezawa na ten cel pozyskała 144 tys. zł z Państwowego Funduszu Rehabilitacji Osób Niepełnosprawnych będących w dyspozycji Województwa Małopolskiego.
Obiekt, w którym będzie się mieścić nowe przedszkole to trzykondygnacyjny budynek wolnostojący znajdujący się na terenie Publicznej Szkoły Podstawowej im. Prymasa Stefana Kardynała Wyszyńskiego. Niedawno docieplone zostały w nim ściany i strop oraz wymieniona stolarka okienna i drzwiowa. Wymieniono także jego pokrycie dachowe. Wkrótce w ramach podpisanej umowy na jego parterze zostaną natomiast utworzone dwie sale przedszkolne, a także szatnie, łazienki oraz sala do rehabilitacji, która będzie wyposażona w nowoczesny sprzęt do ćwiczeń. Na pierwszym piętrze będzie się mieściła m.in. kuchnia obsługująca przedszkole oraz szkołę, stołówka, świetlica i sala rekreacyjna. Na drugim piętrze powstaną natomiast trzy nowoczesne sale dydaktyczne wraz z pokojem pedagoga i toaletami.
Cały budynek przedszkola w Dąbrówce będzie przystosowany do potrzeb osób niepełnosprawnych. Dzięki budowie windy będą one miały dostęp do wszystkich pomieszczeń znajdujących się w obiekcie. To jednak nie wszystko. Do budynku przedszkola zostanie zamontowana specjalna pochylnia, a w jego wnętrzu pojawią się pochwyty ścienne. Ponadto na każdej jego kondygnacji powstanie toaleta dla osób niepełnosprawnych. Na terenie przedszkola zostaną zamontowane również specjalne płyty ostrzegawcze z wypukłościami. Opracowane zostaną także różne schematy kolorystyczne wnętrz, co ma ułatwić poruszanie się po budynku osobom niewidomym i słabowidzącym. - Przebudowa budynku w Dąbrówce na integracyjne przedszkole jest z całą pewnością jedną z najważniejszych inwestycji realizowanych na trenie gminy Rzezawa w ostatnich latach. Utworzenie takiego miejsca jest bardzo potrzebne. Obecna siedziba przedszkola zaczyna być już zbyt ciasna. Posiada ona także bariery architektoniczne – zaznacza Wójt Gminy Rzezawa Mariusz Palej.
Umowa na przebudowę budynku na ternie szkoły podstawowej w Dąbrówce na integracyjne przedszkole została podpisana przez Wójta Mariusza Paleja z wykonawcą inwestycji 9 września br., po czym odbyło się przekazanie terenu pod budowę. Zadanie ma zostać zrealizowane do 14 sierpnia 2020 roku. Gmina Rzezawa na ten cel pozyskała 144 tys. zł z Państwowego Funduszu Rehabilitacji Osób Niepełnosprawnych będących w dyspozycji Województwa Małopolskiego.
Czytano: 484 razy




























