Nowy plac zabaw oraz zielona siłownia w Krzeczowie!!!
Nowy plac zabaw oraz zielona siłownia w Krzeczowie!!!
2016-05-30
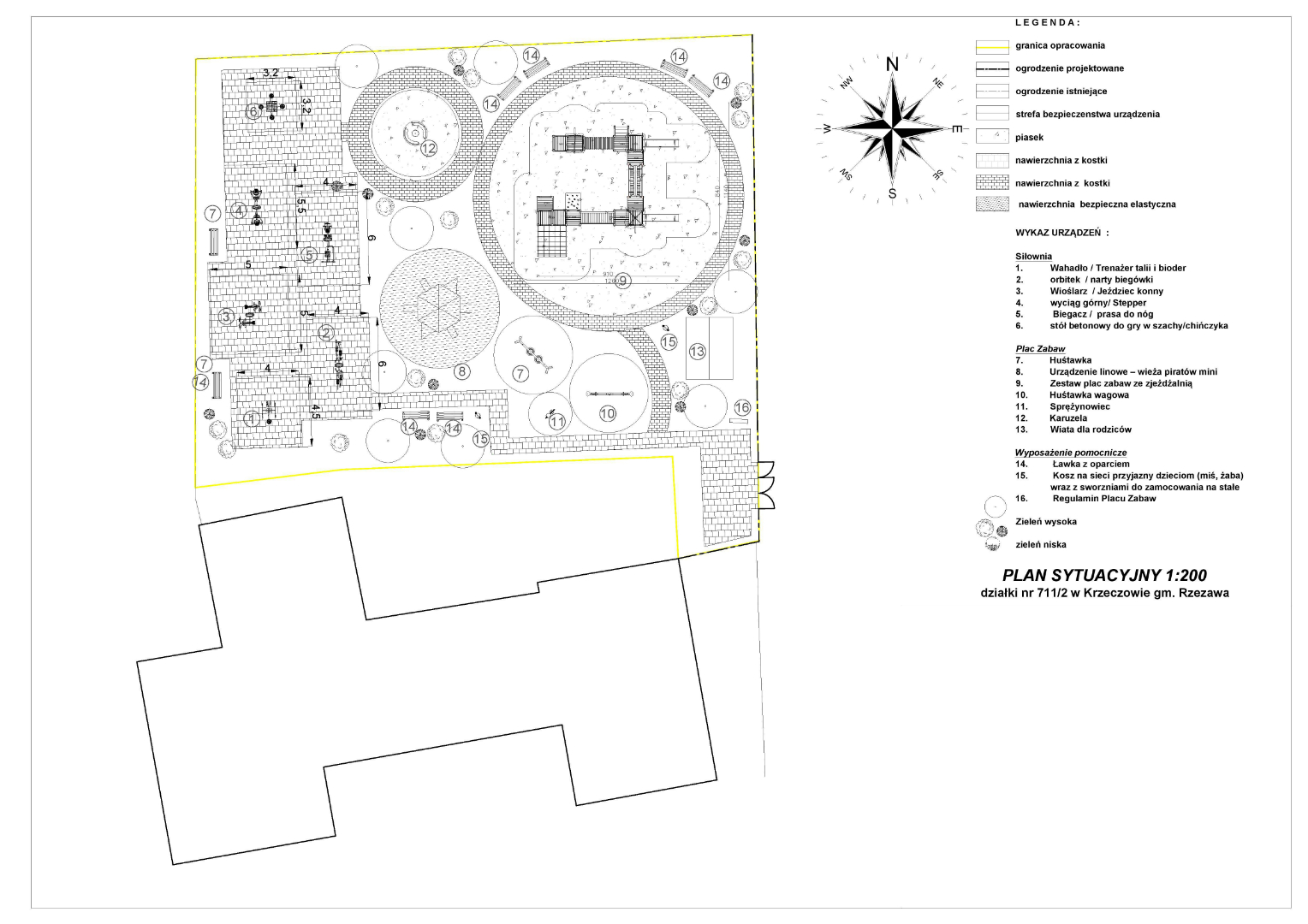
Niebawem mieszkańcy Krzeczowa będą mogli korzystać z nowego placu zabaw oraz zielonej siłowni zlokalizowanej na terenie rekreacyjnym przy bibliotece i świetlicy wiejskiej w Krzeczowie. Dzięki dużemu zaangażowaniu pracowników urzędu gminy oraz GCKCziS w Rzezawie otrzymaliśmy dofinansowanie wynoszące 75 % wnioskowanej kwoty, które wynosi 118.786,00 zł. Wartość całego zadania to kwota 158.382,00 zł. Złożony został wniosek na dofinansowanie zadania pn. „Stworzenie warunków dla nowej i zwiększenie atrakcyjności istniejącej oferty placówki bibliotecznej w Krzeczowie, poprzez zagospodarowanie terenu wokół budynku oraz zakup i montaż sprzętu oraz wyposażenia”. Zadanie to będzie realizowane w ramach Narodowego Programu Rozwoju Czytelnictwa – Priorytet 2 „Infrastruktura Bibliotek 2016-2020”, którego operatorem jest Instytut Książki, a wchodzi on w skład programu rządowego uchwalonego przez Radę Ministrów. Wpłynęło 255 wnioskówz czego dofinansowano tylko 89 projektów. Nasz projekt jako jedyny z tego terenu uplasował się na pozycji 72 z maksymalnym dofinasowaniem. W ramach projektu zostanie wykonane pełne zagospodarowanie terenu przy bibliotece w skład którego wchodzi : dostawa i montaż urządzeń zielonej siłowni, placu zabaw wraz z utwardzeniem terenu oraz małą architekturą, ogrodzeniem oraz wyposażenie biblioteki poprzez zakupienie między innymi projektora, ekranu, zestawu komputerowego, urządzenia wielofunkcyjnego. Nie ulega wątpliwości, iż lokalna infrastruktura jest istotna dla mieszkańców, gdyż to ona w znaczącej mierze decyduje o komforcie naszego życia. To miejsce jest tworzone z myślą o wszystkich mieszkańcach, dlatego już niebawem będą mogli z niego korzystać głównie mieszkańcy Krzeczowa.
Realizacja projektu pn. „Stworzenie warunków dla nowej i zwiększenie atrakcyjności istniejącej oferty placówki bibliotecznej w Krzeczowie, poprzez zagospodarowanie terenu wokół budynku oraz zakup i montaż sprzętu oraz wyposażenia” współfinansowana ze środków Ministerstwa Kultury i Dziedzictwa Narodowego oraz Narodowego Programu Rozwoju Czytelnictwa Priorytet 2 Infrastruktura Bibliotek 2016-2020”.

Realizacja projektu pn. „Stworzenie warunków dla nowej i zwiększenie atrakcyjności istniejącej oferty placówki bibliotecznej w Krzeczowie, poprzez zagospodarowanie terenu wokół budynku oraz zakup i montaż sprzętu oraz wyposażenia” współfinansowana ze środków Ministerstwa Kultury i Dziedzictwa Narodowego oraz Narodowego Programu Rozwoju Czytelnictwa Priorytet 2 Infrastruktura Bibliotek 2016-2020”.
Czytano: 1875 razy




























