Modernizacja remizy w Okulicach
Modernizacja remizy w Okulicach
2021-06-10
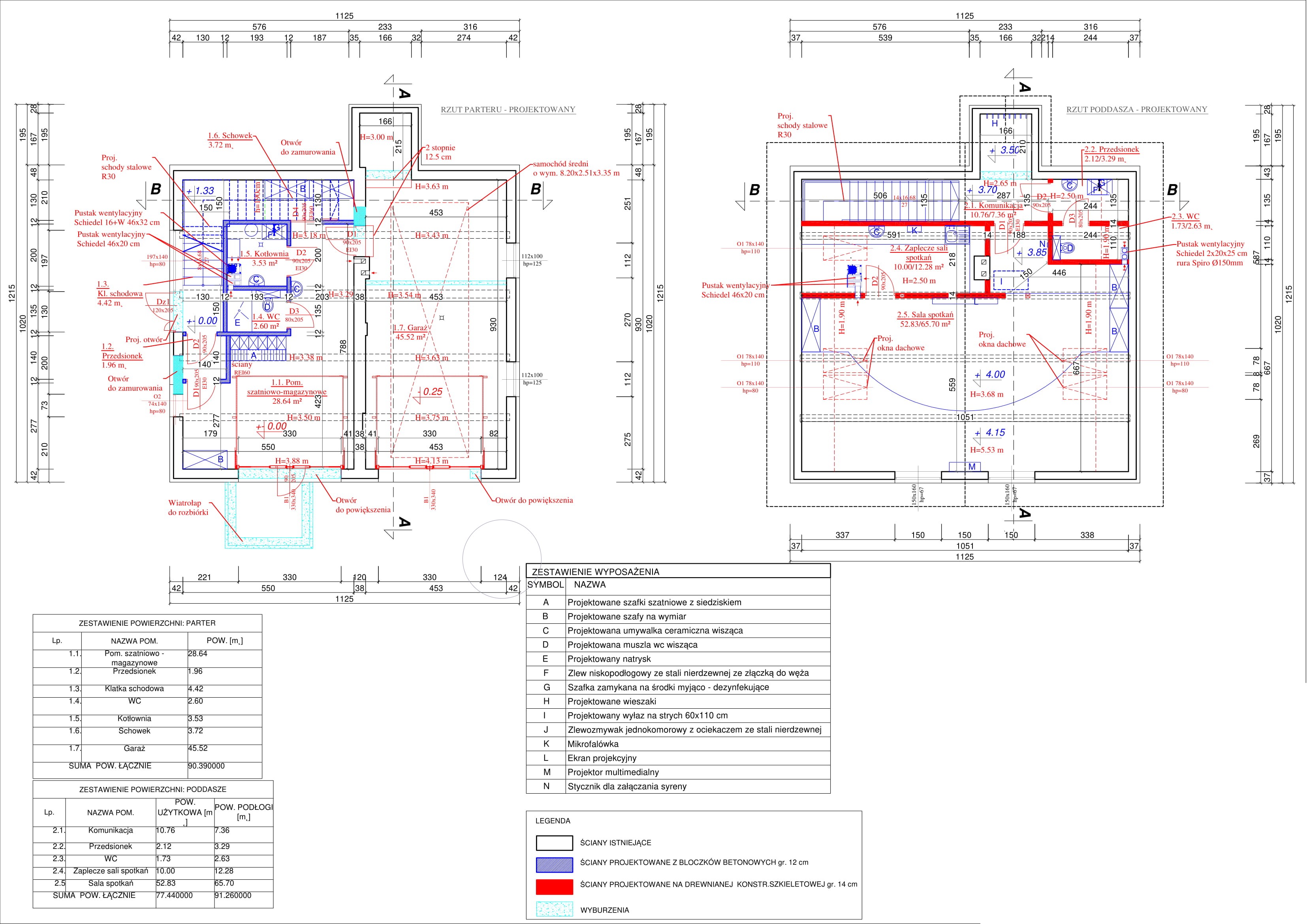
Dokumentacja projektowa dotycząca przebudowy budynku Ochotniczej Straży Pożarnej w Okulicach jest już gotowa. Jest to kolejny krok w kierunku włączenia miejscowej jednostki straży pożarnej do Krajowego Systemu Ratowniczo-Gaśniczego.
Na opracowanie dokumentacji projektowej przebudowy remizy w Okulicach Gmina Rzezawa przeznaczyła niespełna 20 tys. zł. Teraz w planie jest remont garażu budynku, w którym będzie mógł zmieścić się m.in. średni samochód strażacki oraz modernizacja jego poddasza.
Na realizacji inwestycji bardzo zależy Wójtowi Gminy Rzezawa Mariuszowi Palejowi, ponieważ są ogromne szanse na to, że dzięki niej Ochotnicza Straż Pożarna z Okulic zostanie włączona do Krajowego Systemu Ratowniczo-Gaśniczego. Oznacza to dla druhów ogromny zaszczyt, ale także duże wyzwanie. Wójt jest jednak przekonany, że strażacy z Okulic daliby radę wyzwaniu i stanowiliby cenne wsparcie dla Państwowej Straży Pożarnej.
Na opracowanie dokumentacji projektowej przebudowy remizy w Okulicach Gmina Rzezawa przeznaczyła niespełna 20 tys. zł. Teraz w planie jest remont garażu budynku, w którym będzie mógł zmieścić się m.in. średni samochód strażacki oraz modernizacja jego poddasza.
Na realizacji inwestycji bardzo zależy Wójtowi Gminy Rzezawa Mariuszowi Palejowi, ponieważ są ogromne szanse na to, że dzięki niej Ochotnicza Straż Pożarna z Okulic zostanie włączona do Krajowego Systemu Ratowniczo-Gaśniczego. Oznacza to dla druhów ogromny zaszczyt, ale także duże wyzwanie. Wójt jest jednak przekonany, że strażacy z Okulic daliby radę wyzwaniu i stanowiliby cenne wsparcie dla Państwowej Straży Pożarnej.
Czytano: 165 razy




























