Gmina Rzezawa buduje kolejne zielone siłownie
Gmina Rzezawa buduje kolejne zielone siłownie
2018-05-14
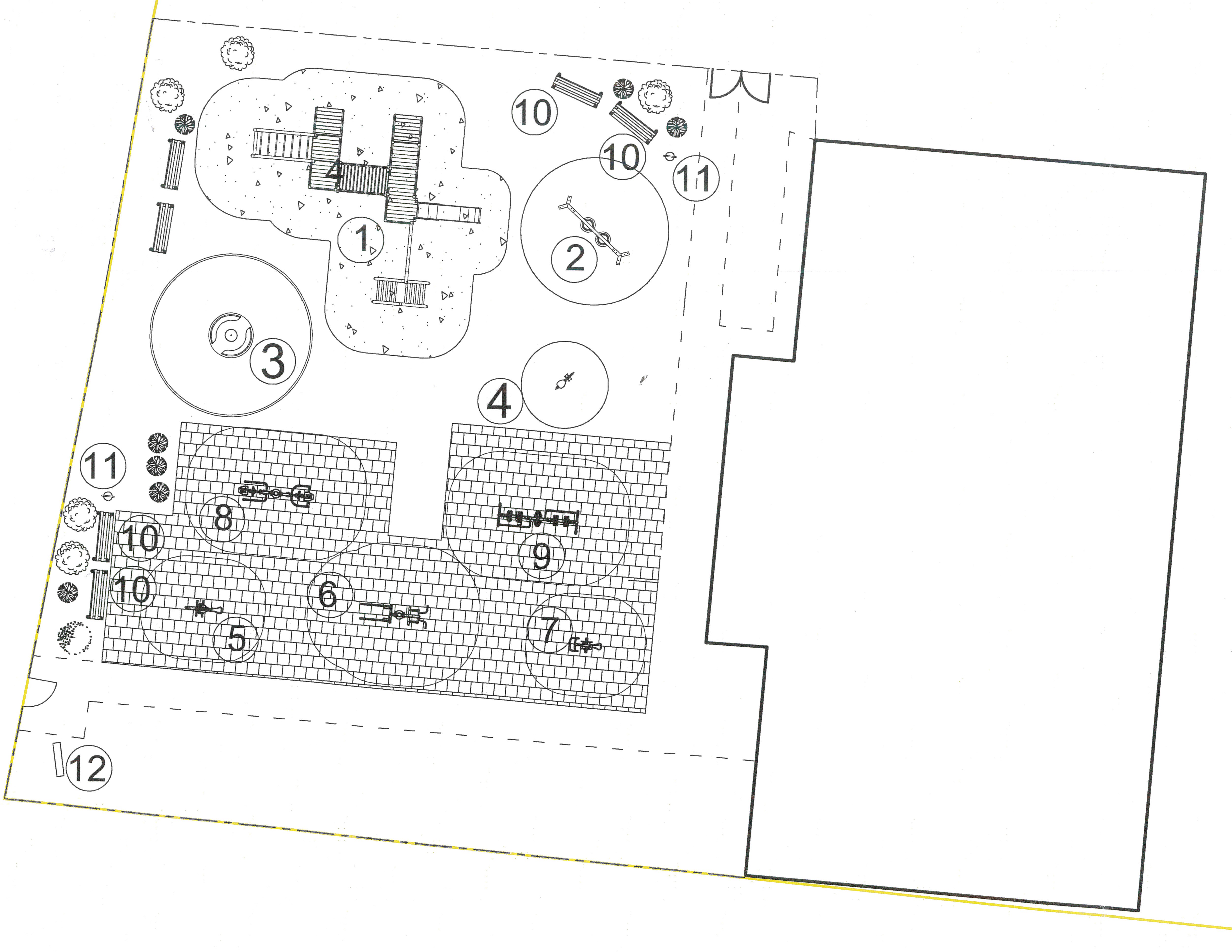
W Okulicach, Ostrowie Królewskim i Bratucicach już wkrótce powstaną zielone siłownie. Gmina Rzezawa na ich wykonanie przeznaczy w sumie ponad 95 tys. zł, z czego niespełna 75 tys. zł podchodzi z dofinansowania uzyskanego z Programu Rozwoju Obszarów Wiejskich.
Budowa bogato wyposażonej w liczne sprzęty do ćwiczeń zielonej siłowni koło Publicznej Szkoły Podstawowej im. Gen. Leopolda Okulickiego w Okulicach będzie kosztować 50 tys., a kwota dofinansowania będzie stanowić niespełna 38 tys. zł. W przypadku Ostrowa Królewskiego i Bratucic wartość umowy na realizację siłowni zewnętrznych sięga kwoty ponad 45 tys. zł, z czego 36 tys. zł pochodzi z uzyskanego dofinansowania.
Zielone siłownie mają być gotowe do 29 czerwca bieżącego roku. – Aktywność fizyczna jest bardzo ważna, dlatego mam nadzieję, że z urządzeń, które wkrótce zostaną zamontowane, będzie korzystać duża liczba osób, podobnie jak dzieje się to w miejscowościach naszej gminy, gdzie zielone siłownie już powstały – podkreśla wójt Gminy Rzezawa Mariusz Palej.
Zieloną siłownię w Okulicach wykona firma Fit Park Spółka z ograniczoną odpowiedzialnością - Sp.k. z Torunia. W Ostrowie Królewskim i Bratucicach wykonawcą będzie natomiast firma Noba-Exim Bartłomiej Norkowski z Kawęczyna.
Budowa bogato wyposażonej w liczne sprzęty do ćwiczeń zielonej siłowni koło Publicznej Szkoły Podstawowej im. Gen. Leopolda Okulickiego w Okulicach będzie kosztować 50 tys., a kwota dofinansowania będzie stanowić niespełna 38 tys. zł. W przypadku Ostrowa Królewskiego i Bratucic wartość umowy na realizację siłowni zewnętrznych sięga kwoty ponad 45 tys. zł, z czego 36 tys. zł pochodzi z uzyskanego dofinansowania.
Zielone siłownie mają być gotowe do 29 czerwca bieżącego roku. – Aktywność fizyczna jest bardzo ważna, dlatego mam nadzieję, że z urządzeń, które wkrótce zostaną zamontowane, będzie korzystać duża liczba osób, podobnie jak dzieje się to w miejscowościach naszej gminy, gdzie zielone siłownie już powstały – podkreśla wójt Gminy Rzezawa Mariusz Palej.
Zieloną siłownię w Okulicach wykona firma Fit Park Spółka z ograniczoną odpowiedzialnością - Sp.k. z Torunia. W Ostrowie Królewskim i Bratucicach wykonawcą będzie natomiast firma Noba-Exim Bartłomiej Norkowski z Kawęczyna.
Czytano: 855 razy




























