Budowa przedszkola w Dąbrówce wsparta ogromną dotacją
Budowa przedszkola w Dąbrówce wsparta ogromną dotacją
2020-03-23
Gmina Rzezawa pozyskała niespełna 1,64 mln zł dofinansowania na przebudowę części budynku szkoły w Dąbrówce na nowoczesne przedszkole integracyjne. To kolejna dotacja na realizację tej niezwykle ważnej inwestycji. Wcześniej zadanie to zostało wsparte już kwotą 144 tys. zł.
Budowa nowego przedszkola w Dąbrówce ruszyła na początku września 2019 roku. Wójt Gminy Rzezawa Mariusz Palej podpisał wtedy umowę z wykonawcą tego zadania. Obecnie trwają tam zaawansowane prace budowlane, które mają zakończyć się już za kilka miesięcy. - Realizacja tej inwestycji jest niezwykle ważna, ponieważ obecna siedziba przedszkola mieszcząca się w jednym z budynków parafialnych zaczyna być już zbyt ciasna. Posiada ona także bariery architektoniczne. Po jej zakończeniu dzieci zyskają natomiast doskonałe warunki sprzyjające ich wszechstronnemu rozwojowi – podkreśla Wójt Mariusz Palej.
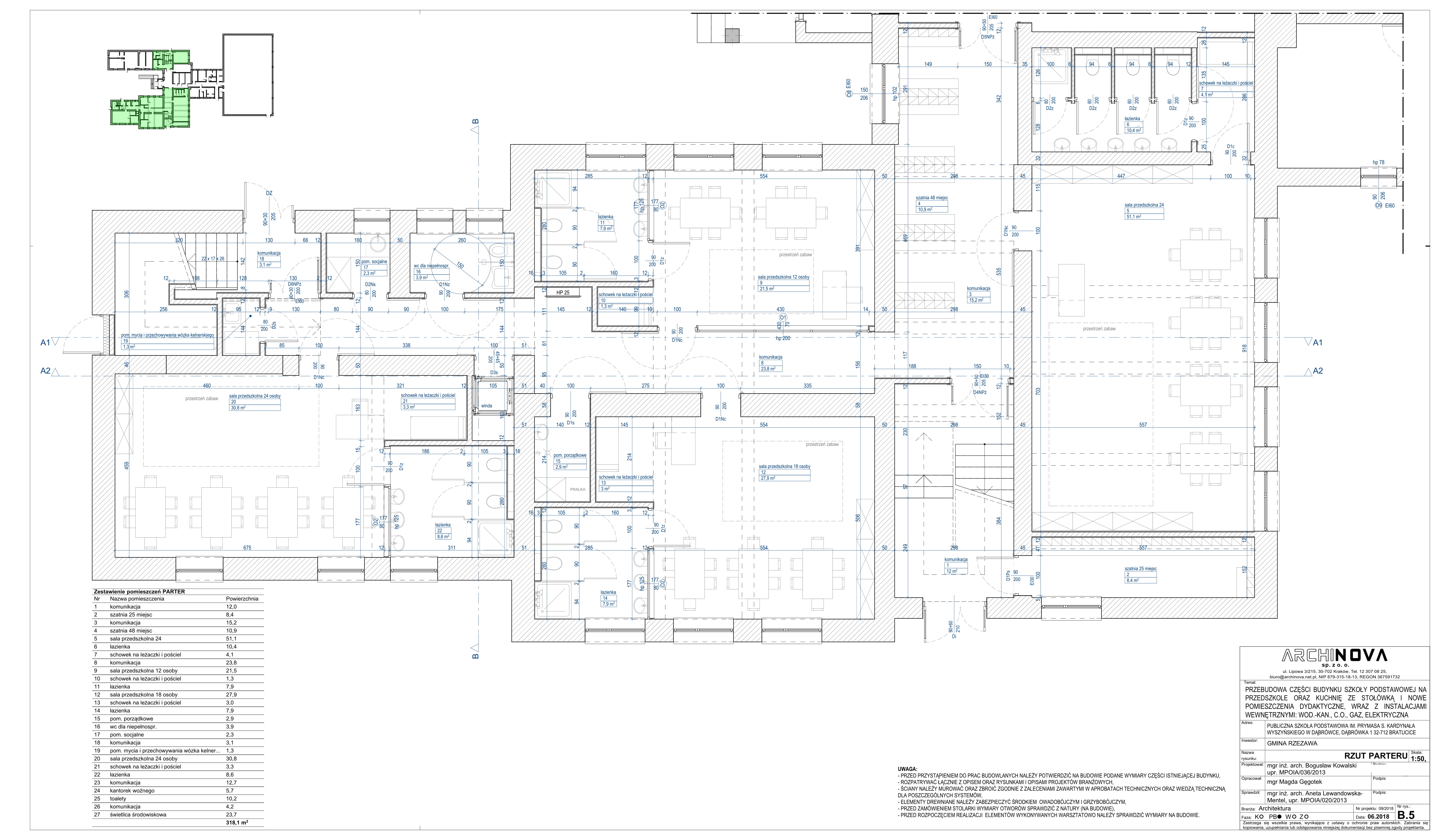
Obiekt, w którym będzie się mieścić nowe przedszkole to trzykondygnacyjny budynek wolnostojący. Niedawno docieplone zostały w nim już ściany i strop. Wymieniono także jego pokrycie dachowe, a także drzwi i okna. Obecnie trwają natomiast dalsze prace związane z jego modernizacją. Na parterze budynku powstaną dwie sale przedszkolne, szatnie, łazienki oraz sala do rehabilitacji. Na pierwszym piętrze będzie się mieściła m.in. kuchnia obsługująca przedszkole oraz szkołę, stołówka, świetlica i sala rekreacyjna. Na drugim piętrze zostaną utworzone natomiast trzy nowoczesne sale dydaktyczne wraz z pokojem pedagoga i toaletami. Cały budynek przedszkola w Dąbrówce będzie przystosowany do potrzeb osób niepełnosprawnych. Dzięki budowie windy będą one miały dostęp do wszystkich pomieszczeń znajdujących się w obiekcie. Wybudowana zostanie także m.in. specjalna pochylnia do drzwi wejściowych budynku, a na terenie całego przedszkola zostaną zamontowane specjalne płyty ostrzegawcze z wypukłościami. Opracowane zostaną także różne schematy kolorystyczne wnętrz, co ma ułatwić poruszanie się po budynku osobom niewidomym i słabowidzącym.
Przebudowa części budynku szkoły w Dąbrówce na nowoczesne przedszkole integracyjne ma kosztować w sumie około 1,74 mln zł, a ogromna część tej sumy pochodzić będzie z uzyskanych dofinansowań (1,64 mln zł z Regionalnego Programu Operacyjnego Województwa Małopolskiego oraz 144 tys. zł z Państwowego Funduszu Rehabilitacji Osób Niepełnosprawnych będących w dyspozycji Województwa Małopolskiego).
Budowa nowego przedszkola w Dąbrówce ruszyła na początku września 2019 roku. Wójt Gminy Rzezawa Mariusz Palej podpisał wtedy umowę z wykonawcą tego zadania. Obecnie trwają tam zaawansowane prace budowlane, które mają zakończyć się już za kilka miesięcy. - Realizacja tej inwestycji jest niezwykle ważna, ponieważ obecna siedziba przedszkola mieszcząca się w jednym z budynków parafialnych zaczyna być już zbyt ciasna. Posiada ona także bariery architektoniczne. Po jej zakończeniu dzieci zyskają natomiast doskonałe warunki sprzyjające ich wszechstronnemu rozwojowi – podkreśla Wójt Mariusz Palej.
Obiekt, w którym będzie się mieścić nowe przedszkole to trzykondygnacyjny budynek wolnostojący. Niedawno docieplone zostały w nim już ściany i strop. Wymieniono także jego pokrycie dachowe, a także drzwi i okna. Obecnie trwają natomiast dalsze prace związane z jego modernizacją. Na parterze budynku powstaną dwie sale przedszkolne, szatnie, łazienki oraz sala do rehabilitacji. Na pierwszym piętrze będzie się mieściła m.in. kuchnia obsługująca przedszkole oraz szkołę, stołówka, świetlica i sala rekreacyjna. Na drugim piętrze zostaną utworzone natomiast trzy nowoczesne sale dydaktyczne wraz z pokojem pedagoga i toaletami. Cały budynek przedszkola w Dąbrówce będzie przystosowany do potrzeb osób niepełnosprawnych. Dzięki budowie windy będą one miały dostęp do wszystkich pomieszczeń znajdujących się w obiekcie. Wybudowana zostanie także m.in. specjalna pochylnia do drzwi wejściowych budynku, a na terenie całego przedszkola zostaną zamontowane specjalne płyty ostrzegawcze z wypukłościami. Opracowane zostaną także różne schematy kolorystyczne wnętrz, co ma ułatwić poruszanie się po budynku osobom niewidomym i słabowidzącym.
Przebudowa części budynku szkoły w Dąbrówce na nowoczesne przedszkole integracyjne ma kosztować w sumie około 1,74 mln zł, a ogromna część tej sumy pochodzić będzie z uzyskanych dofinansowań (1,64 mln zł z Regionalnego Programu Operacyjnego Województwa Małopolskiego oraz 144 tys. zł z Państwowego Funduszu Rehabilitacji Osób Niepełnosprawnych będących w dyspozycji Województwa Małopolskiego).
Czytano: 305 razy




























