Budowa sali gimnastycznej z zapleczem i wyposażeniem w Okulicach, gmina Rzezawa.
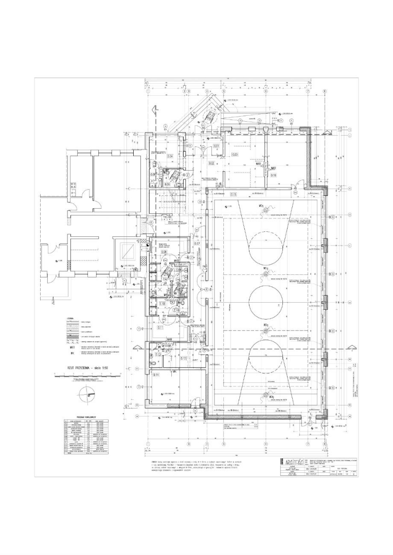
W dniu 12.07.2016 r. w Rzezawie, została zawarta umowa pomiędzy Gminą Rzezawa reprezentowaną przez Pana Mariusza Paleja – Wójta Gminy a Panem Krzysztofem Żakiem, prowadzącym firmę budowlana ERGBUD Krzysztof Żak. Przedmiotem umowy jest wykonanie robót budowlanych polegających na przebudowie i rozbudowie budynku Publicznej Szkoły Podstawowej o salę gimnastyczną z zapleczem i wyposażeniem w Okulicach wraz z uzyskaniem pozwolenia na użytkowanie. Termin wykonania wszystkich prac jest do 31.08.2018 roku. Wartość umowy wynosi 1.226.726,65 zł. Zaprojektowany budynek sali gimnastycznej posiada arenę sportową o wymiarach 12 x 24 m, pomieszczenia zaplecza oraz galerię widokową na salę gimnastyczną. Zaprojektowano również niezależne wejście do zespołu sali sportowej.




























